PLAN

プラン例集

PLAN054北4LDK-39.62③

ユーティリティースペースのある家事楽の家

規格住宅プラン情報

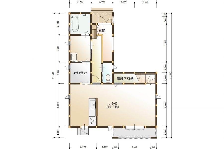
  • 1階 平面図

    1階 平面図
  • 2階 平面図

    2階 平面図
  • パース図 北東面

    パース図 北東面
  • パース図 北西面

    パース図 北西面
  • パース図 南東面

    パース図 南東面
  • パース図 南西面

    パース図 南西面
  • 立面図 北面

    立面図 北面
  • 立面図 南面

    立面図 南面
  • 立面図 東面

    立面図 東面
  • 立面図 西面

    立面図 西面

規格住宅 工事価格

2,106万円(税込)

面積表

  • 1階床面積 60.00㎡(18.15坪)
  • 2階床面積 62.00㎡(18.75坪)
  • 延床面積 122.00㎡(36.90坪)
  • 工事施工面積 131.00㎡(39.62坪)
一覧へ戻る

お問い合わせ・ご相談はお気軽にご相談下さい。

0120-213-337

受付時間:9:00~18:00(日祝除く)