PLAN

プラン例集

PLANN6N-4LDK-3055

規格住宅【stylefit】

規格住宅プラン情報

  • 外観イメージ

    外観イメージ
  • 1F間取り図

    1F間取り図
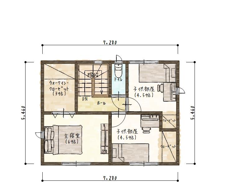
  • 2F間取り図

    2F間取り図

規格住宅 工事価格

1,804万円(税込)

面積表

  • 1F床面積 58.79㎡(17.78坪)
  • 2F床面積 39.74㎡(12.02坪)
  • 延床面積 98.53㎡(29.80坪)
  • 工事施工面積 101.02㎡(30.55坪)
一覧へ戻る

お問い合わせ・ご相談はお気軽にご相談下さい。

0120-213-337

受付時間:9:00~18:00(日祝除く)